about
info
works
store
furniture
Works
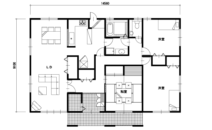
OHASHI HOUSE
Date:
2016/08/27
Category:
RENOVATION
所在地:
福岡市南区大橋
敷地面積:
50平米
建築面積:
40平米
延床面積:
40平米
タイプ:
タイプ
建築構造:
鉄筋コンクリート
竣工年月:
2001/1
Planning